Schritt 2
Angebots-erstellung
Auf Grundlage unseres Gesprächs, einer Vor-Ort-Besichtigung und unseres Aufmaßes erstellen wir Ihnen ein unverbindliches Angebot
Schritt 2
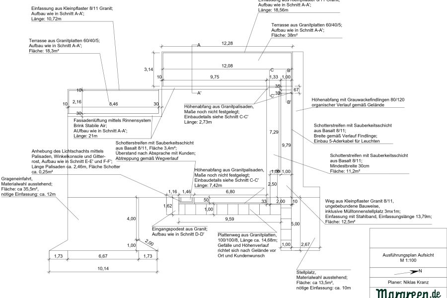
Schritt 3
Planung
Jetzt werden wir für Sie kreativ! Gemeinsam erschaffen wir auf dem Zeichenbrett Ihren Traumgarten.
Schritt 3






